Снять офис, г. Минск, ул. Кропоткина, 91

Снять офис, г. Минск, ул. Кропоткина, 91

Офис
127.2
Площадь
Снять офис, г. Минск, ул. Кропоткина, 91
4 302 руб. 1 526 $ 12.00 $ / м²
05.03.2026, 18:01
Позвонить +375 (29) 188-55-99 Позвоните мне
Минск и Минская область

Описание

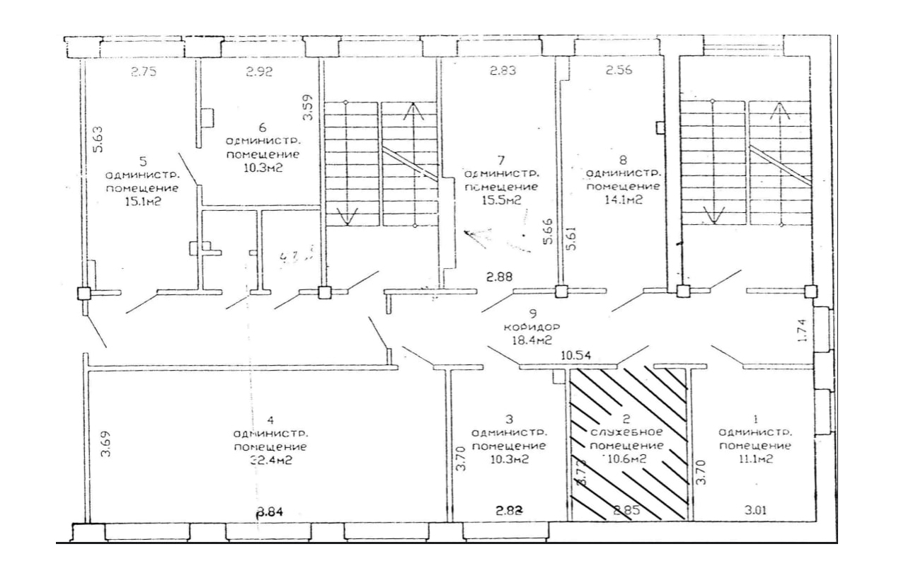
Аренда офисного блока на втором этаже с отдельным входом, у будущего метро: ул. Кропоткина, 91, свой вход и личный климат-контроль - акцент на независимость и комфорт.

Общая площадь: 127,2 м2 (возможна аренда части помещения).

Кабинетная планировка: 7 кабинетов с естественным освещением, доступна аренда без мебели, а также с мебелью, техникой (принтеры, компьютеры, плоттер профессиональный для широкоформатной печати и др.).

Презентабельная зона подъема: широкая лестница ведет непосредственно в ваш офис, минуя общие коридоры и соседей. Доступ: 24/7.

 Отделка помещения:

-напольное покрытие: ламинат (кабинеты), плитка (коридор)

-стены: обои

-окна: стеклопакеты

-ремонт: офисный в хорошем состоянии

 Инженерные системы и коммуникации:
-приточно-вытяжная вентиляция
-покабинетное кондиционирование

-высокоскоростной интернет

-собственный с/у

 Парковка:

предоставляется 1 машиноместо на наземной парковке со шлагбаумом (бесплатно, при аренде всей площади), доступны места в аренду в ближайшем современном подземном паркинге.

 Развитая инфраструктура и логистика:

Офис расположен в развивающемся деловом квартале Центрального района. В непосредственной близости находится современный МК «Фарфоровый», что формирует статусное соседство и активную бизнес-среду, обеспечивает доступ к новым бизнес-центрам, кафе, кофейням, магазинам, тренажерным залам и сервисам. В радиусе 100 метров — головные офисы крупнейших банков.

Транспортная доступность:
Удобные выезды на ключевые магистрали города: проспект Машерова, улицы Максима Богдановича,  Веры Хоружей и второе кольцо.

Отличная связь со ст. м. «Немига» и «Площадь Якуба Коласа».

Метро: в 2028- 2029 году в шаговой доступности откроются станции «Комаровская» и «Переспа», что значительно увеличивает привлекательность объекта.

Result Estate — ваш надёжный партнёр на рынке недвижимости.

20 лет опыта наших агентов по недвижимости — это ваш ключ к идеальной сделке: глубокое знание рынка, эксклюзивные предложения, юридическая безопасность и индивидуальный подход. Мы экономим ваше время, деньги и нервы, помогая купить, продать недвижимость быстро, выгодно и с уверенностью в результате!

Опишите свои пожелания — и мы оперативно подберем для вас лучшие варианты!

ООО «Результативная недвижимость», лицензия выдана Минюстом 26.09.2023 № 02240470, УНП 193703497

Связываясь с нами по данному объекту, Вы даете свое согласие на сбор и обработку персональных данных автоматически.