Снять помещение для сферы услуг, г. Минск, ул. Мстиславца, 22

Снять помещение для сферы услуг, г. Минск, ул. Мстиславца, 22

Сфера услуг
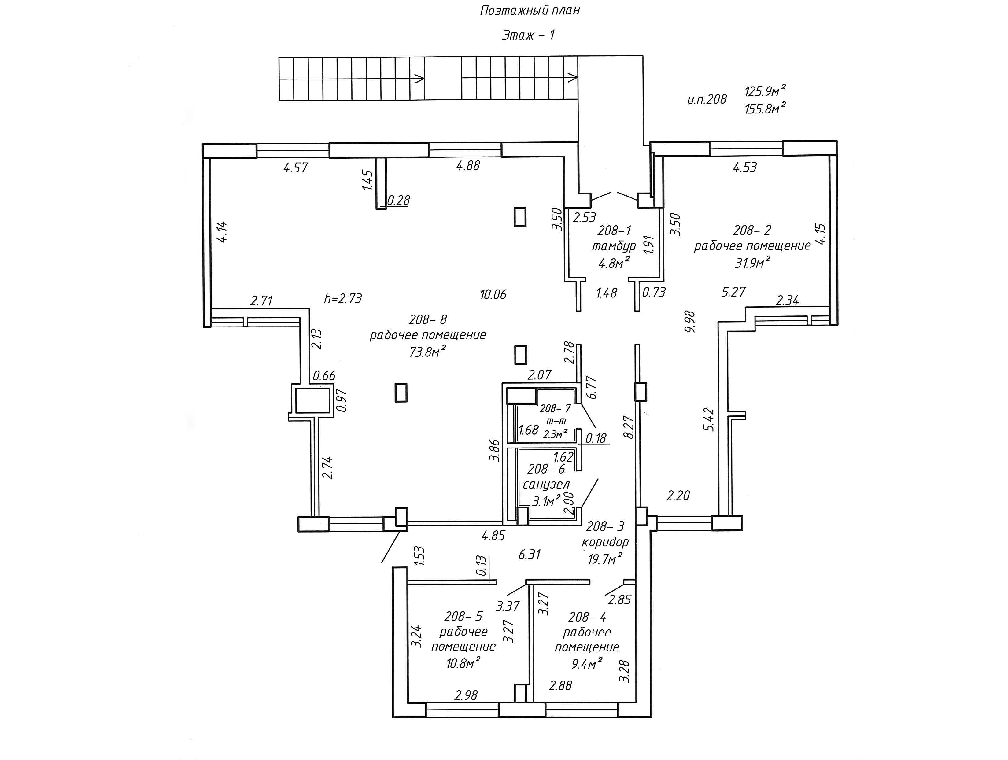
155.8
Площадь
Снять помещение для сферы услуг, г. Минск, ул. Мстиславца, 22
06.03.2026, 18:01
Позвонить +375 (29) 188-55-99 Позвоните мне
Минск и Минская область

Описание

Аренда Административно-торгового помещения площадью 155.8 м2 в топовой локации в 2 мин ходьбы от ст. метро "Восток", ТЦ "Dana Mall" на 1-м этаже.
Есть возможность реализации помещения под любой профиль.

Условия аренды:

-Ставка 18 долл. (0 ндс УСН)
-Помещение доступно к аренде

Локация:

-В шаговой доступности метро «Восток», остановки общественного транспорта, развитая инфраструктура
-Высокая проходимость
-Объект расположен рядом с ключевыми государственными учреждениями, банки, отели и бизнес-центры
-Удобный выезд на основные транспортные артерии города( пр-т Независимости).


Характеристики помещения:

-Помещения находятся на 1-м этаже с 2-мя отдельныи входами с лицевой и обратной стороны
-Современный ремонт
-Формат открытого пространства с возможностью установки дополнительных перегородок
-Лицевая сторона помещения смотрит на ТЦ "Dana Mall" в 50м.
-Высокая степень естественного освещения
-Раздельный сан узел.
-Доступ 24/7
-Свободная парковка


Инженерные системы и коммуникации:

- вентиляция приточно-вытяжная;
- кондиционирование;
- разведены электрические cети;
- видеонаблюдение;
- контроль доступа;

Торг реальному арендатору!

Result Estate — ваш надёжный партнёр на рынке недвижимости.

20 лет опыта наших агентов по недвижимости — это ваш ключ к идеальной сделке: глубокое знание рынка, эксклюзивные предложения, юридическая безопасность и индивидуальный подход. Мы экономим ваше время, деньги и нервы, помогая купить, продать недвижимость быстро, выгодно и с уверенностью в результате!

ООО «Результативная недвижимость», лицензия выдана Минюстом 26.09.2023 № 02240470, УНП 193703497

Связываясь с нами по данному объекту, Вы даете свое согласие на сбор и обработку персональных данных автоматически.