Снять торговое помещение, г. Минск, просп. Партизанский, 45

Снять торговое помещение, г. Минск, просп. Партизанский, 45

Торговое помещение
102.1
Площадь
Снять торговое помещение, г. Минск, просп. Партизанский, 45
3 454 руб. 1 225 $ 12.00 $ / м²
11.03.2026, 15:01
Позвонить +375 (29) 188-55-99 Позвоните мне
Минск и Минская область

Описание

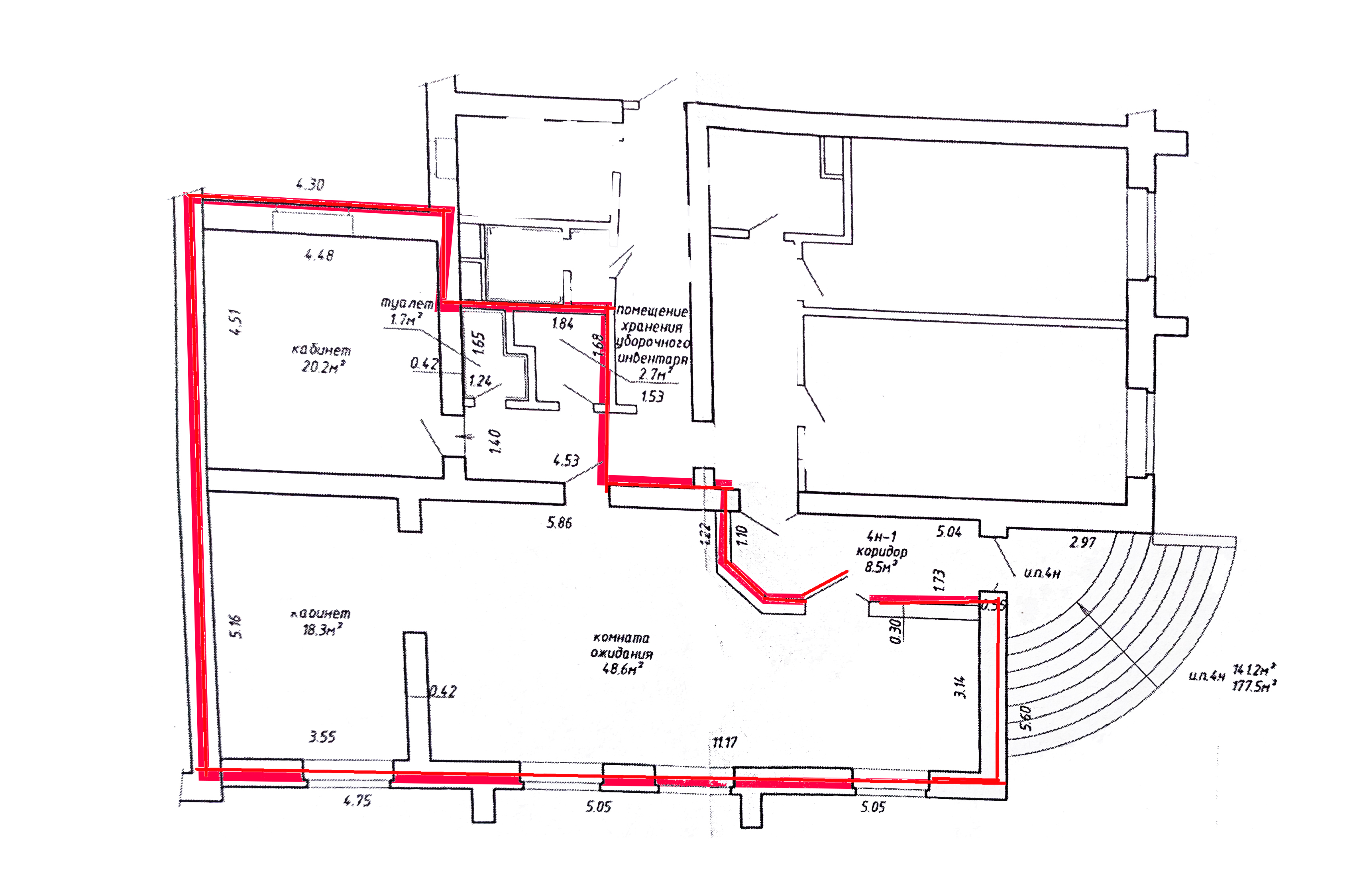
Аренда помещения площадью 102,1 м2 с отдельным входом по адресу: пр.Партизанский, 45. Включает основной зал 60 м2, кабинет 20,2 м2, помещение 2,7 м2 и собственный санузел.

 Отделка помещения:

-пол: плитка ,линолеум

-потолок: армстронг

-стены: под покраску

-ремонт: офисный, требуется косметическое обновление

-высота: 3м

-окна: ПВХ-стеклопакеты,в кабинете установлена защитная роллета, 4 из 5 окон выходят на Партизанский проспект

-выделенная мощность: 8кВт

- отдельный вход с доступом 24/7

Инженерные системы и коммуникации:

-водоснабжение, отопление, канализация: центральные
-вентиляция с естественным побуждением
-собственный с/у

 Парковка:

Организованная парковка вдоль дома и на прилегающих улицах

 Местоположении и инфраструктура
- до пл. Ванеева-300м

Транспортный узел: Площадь Ванеева — одна из ключевых развязок, обеспечивающая высокий автомобильный и пешеходный трафик
- до МКАД-10 минут
- до ст.м.Партизанская и Тракторный завод -2-4 остановки или около 15мин.
- до железнодорожного и автовокзала -15минут
- недалеко находятся корпуса БГЭУ, Национальный футбольный стадион, детский Центр технического творчества

- в шаговой доступности работают супермаркеты, аптеки, отделения банков, почта и объекты общественного питания

- помещение окружено плотной жилой застройкой, что обеспечивает стабильную базу потенциальных клиентов для услуг формата «у дома».

Result Estate — ваш надёжный партнёр на рынке недвижимости.

20 лет опыта наших агентов по недвижимости — это ваш ключ к идеальной сделке: глубокое знание рынка, эксклюзивные предложения, юридическая безопасность и индивидуальный подход. Мы экономим ваше время, деньги и нервы, помогая купить, продать недвижимость быстро, выгодно и с уверенностью в результате!

Все актуальные предложения в одном месте — смотрите на нашем сайте.

Опишите свои пожелания — и мы оперативно подберем для вас лучшие варианты!

ООО «Результативная недвижимость», лицензия выдана Минюстом 26.09.2023 № 02240/470, УНП 193703497