Снять склад, г. Брест, ул. Писателя Смирнова (237.80 м²)

Снять склад, г. Брест, ул. Писателя Смирнова (237.80 м²)

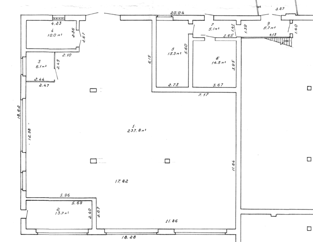
Склад (Производство)
237.8
Площадь
Снять склад, г. Брест, ул. Писателя Смирнова (237.80 м²)
4 022 руб. 1 420 $ 5.97 $ / м²
13.03.2026, 12:01
Позвонить +375 (29) 188-55-99 Позвоните мне
Брест и Брестская область

Описание

Производственно-складское помещение в Аренду г Брест.

Общей площадью 237.8 кв.м., специализированное иного назначения в комплексе других строений.

Коммуникации:

Отопление (возможность подключения котельной, газ), электроснабжение - 220В/380В.,

водоснабжение - централизованное,

водоотведение - централизованное.

Кран - Балка внутри помещения.

Две входных группы.

Стены - кирпич, Окна, двери - ПВХ.

Рядом есть два помещения 14,5/15.3 м.кв возможность соединения с производственным помещением.

Без НДС.

Расположение здания в комплексе других строений рядом с другими арендаторами, позволяет осуществлять подъезд большегрузных автомобилей вокруг здания, что удобно для выгрузки-загрузки, удобные подъездные пути, асфальтированный подъезд.

Так же могут быть предоставлены дополнительно в аренду - офисные и складские помещения.

Result Estate — ваш надёжный партнёр на рынке недвижимости.

20 лет опыта наших агентов по недвижимости — это ваш ключ к идеальной сделке: глубокое знание рынка, эксклюзивные предложения, юридическая безопасность и индивидуальный подход. Мы экономим ваше время, деньги и нервы, помогая купить, продать недвижимость быстро, выгодно и с уверенностью в результате!

ООО «Результативная недвижимость», лицензия выдана Минюстом 26.09.2023 № 02240470, УНП 193703497