Снять помещение для сферы услуг, г. Минск, ул. Мстиславца, 7

Снять помещение для сферы услуг, г. Минск, ул. Мстиславца, 7

Сфера услуг
163
Площадь
Снять помещение для сферы услуг, г. Минск, ул. Мстиславца, 7
10 620 руб. 3 749 $ 23.00 $ / м²
31.03.2026, 15:01
Позвонить +375 (29) 188-55-99 Позвоните мне
Минск и Минская область
Восток

Описание

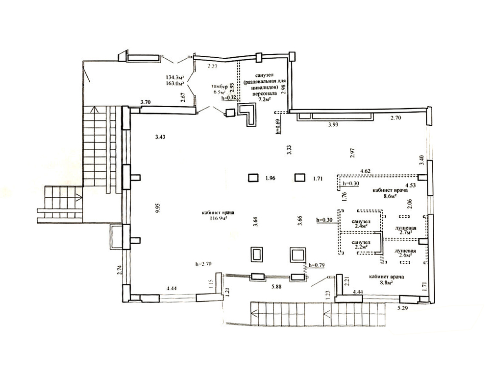
Изолированное помещение 163,0 кв.м. в престижном ЖК «Маяк Минска»  на 1 этаже.

Помещение, с 2 отдельными входами общей площадью 163,0 кв.м.

Назначение – помещение здравоохранения.

Черновая отделка, панорамные окна, высота потолка h=2.7 метра, безбарьерная среда. Здание обслуживается товариществом собственников. Доступ 24/7.
Помещение идеально подойдет для медицинского центра, стоматологию, услуги косметолога, детского центра, другой различной сферы услуг.

Инженерные системы и коммуникации:

- приточно-вытяжная вентиляция (собственная вентиляционная установка);

- разведены электрические сети;

- центральное водоснабжение и отопление;

- пожарная сигнализация.

Парковка:

Свободная плоскостная парковка возле здания.

Транспортное сообщение:

Станция метро «Восток» и более десяти маршрутов городского транспорта курсирует в шаговой доступности от здания.

автобусы: 27, 80, 91, 113с, 350, 351, 447, 451, 451в, 451у, 461, 500э, 509а

маршрутки: 1002, 1064, 1152, 1455, 1547, 1222, 2415ск, 2463тк, 2469, 2469а, 2470тк, 2471тк, 3500тк, 3660тк

троллейбусы: 1, 41, 42

Инфраструктура:

Множество кафе и ресторанов (Васильки, Gan Bei, Тьерри, Cofix, KFC, Papa Doner, Salateira, Хинкальня), продуктовых магазинов (Green, Vegetus, Грошык), а также различные услуги (Аптеки, ТЦ «Dana Mall», фитнес-клуб «Адреналин», салон красоты, парикмахерская ) и банковские отделения (Беларусбанк, БСБ Банк, Белгазпромбанк, Банк БелВЭБ, Сбер Банк, Технобанк).

Result Estate — ваш надёжный партнёр на рынке недвижимости.

20 лет опыта наших агентов по недвижимости — это ваш ключ к идеальной сделке: глубокое знание рынка, эксклюзивные предложения, юридическая безопасность и индивидуальный подход. Мы экономим ваше время, деньги и нервы, помогая купить, продать недвижимость быстро, выгодно и с уверенностью в результате!

ООО «Результативная недвижимость», лицензия выдана Минюстом 26.09.2023 № 02240/470, УНП 193703497

Связываясь с нами по данному объекту, Вы даете свое согласие на сбор и обработку персональных данных автоматически.