Снять торговое помещение, г. Минск, ул. Притыцкого, 144

Снять торговое помещение, г. Минск, ул. Притыцкого, 144

Торговое помещение
324
Площадь
Снять торговое помещение, г. Минск, ул. Притыцкого, 144
17 096 руб. 6 156 $ 19.00 $ / м²
17.04.2026, 18:01
Позвонить +375 (29) 188-55-99 Позвоните мне
Минск и Минская область

Описание

Аренда торгового помещения 324 м2 с высоким траффиком, и отдельным входом!

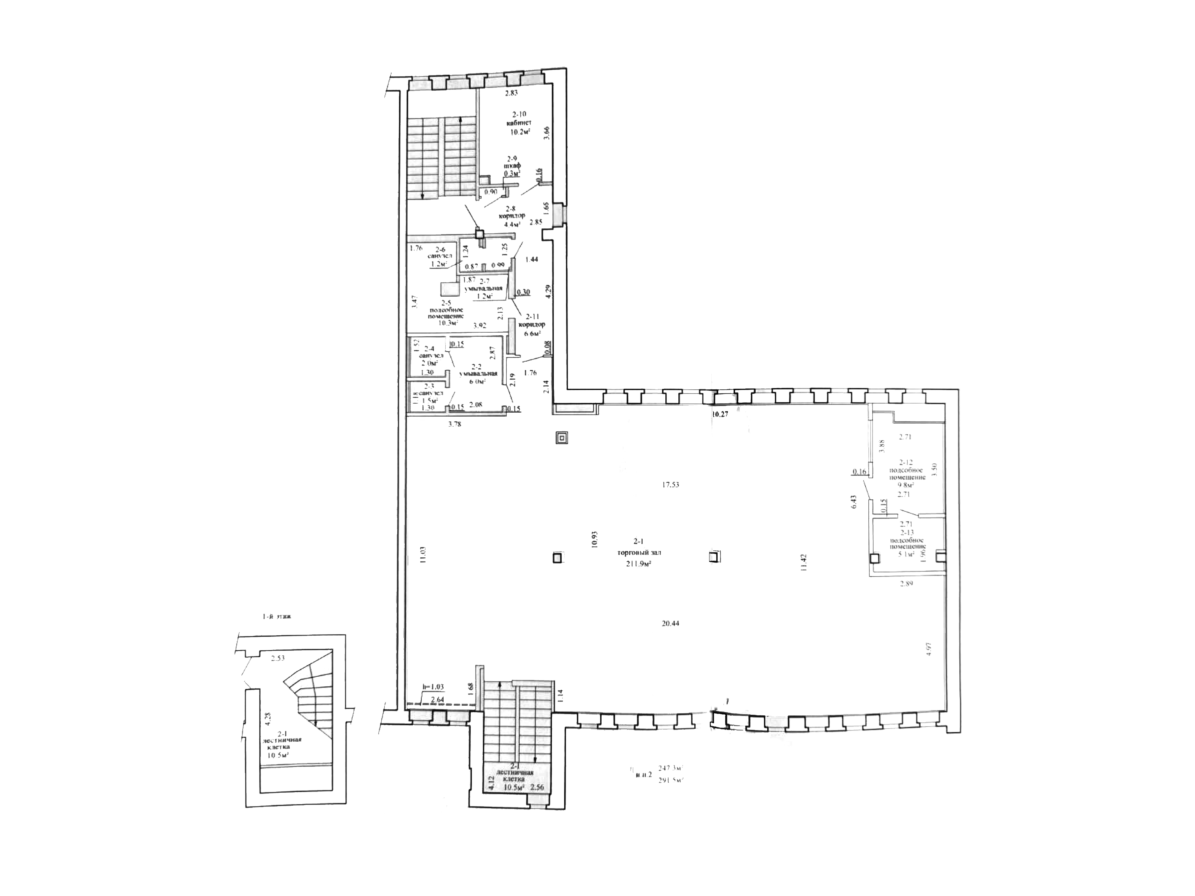
Торговое помещение площадью 324 м2 расположено на втором этаже отдельно стоящего административного здания.

Общая площадь помещения - 324 м2
Площадь помещения - 291,5 м2
Площадь лестничного пролёта для погрузки-разгрузки 32,5 м2

- Выделенная мощность в помещении ~ 40 кВт
- Собственная вент. установка: приточно-вытяжная вентиляция.
- Отдельный вход.
- С обратной стороны здания парковка и индивидуальная зона погрузки-разгрузки

Привлекательное расположение рядом с метро и ТЦ "Green City" с высоким пешеходным и автомобильным трафиком делает этот объект отличным выбором для вашего бизнеса!

Преимущества локации:

  • Метро «Каменная горка» в пешей доступности;
  • Удобный подъезд и парковка рядом с зданием;
  • Остановки общественного транспорта рядом с объектом;
  • Окружение коммерческих площадей формата Street Retail (магазины, аптеки, рестораны, кофейни).

Параметры и возможности помещения:

  • Возможность зонирования: помещение можно разделить на необходимые изолированные секции.
  • Полный доступ: круглосуточный доступ к объекту 24/7.
  • Коммуникации: электроснабжение, отопление, пожарная сигнализация, высокоскоростной интернет, современная система приточно-вытяжной вентиляции.
  • Удобства: удобные подъездные пути для клиентов и сотрудников, место на обратной стороне здания для погрузки разгрузки .

Result Estate — ваш надёжный партнёр на рынке недвижимости.

20 лет опыта наших агентов по недвижимости — это ваш ключ к идеальной сделке: глубокое знание рынка, эксклюзивные предложения, юридическая безопасность и индивидуальный подход. Мы экономим ваше время, деньги и нервы, помогая купить, продать недвижимость быстро, выгодно и с уверенностью в результате!

Все актуальные предложения в одном месте — смотрите на нашем сайте.

Опишите свои пожелания — и мы оперативно подберем для вас лучшие варианты!


ООО «Результативная недвижимость», лицензия выдана Минюстом 26.09.2023 № 02240470, УНП 193703497

Связываясь с нами по данному объекту, Вы даете свое согласие на сбор и обработку персональных данных автоматически.