Снять помещение для сферы услуг, г. Минск, ул. Притыцкого, 25

Снять помещение для сферы услуг, г. Минск, ул. Притыцкого, 25

Сфера услуг
115.9
Площадь
Снять помещение для сферы услуг, г. Минск, ул. Притыцкого, 25
23.04.2026, 18:01
Позвонить +375 (29) 188-55-99 Позвоните мне
Минск и Минская область

Описание

Аренда помещения в ЖК «Гулливер»!

Предлагается в аренду коммерческое помещение свободного назначения под любой вид деятельности (в приоритете рассмотрим медицинский центр, стоматологию, лабораторию или косметологию) в одном из самых оживленных районов г. Минска — в шаговой доступности от ст.м. Пушкинская и ст.м. Спортивная.

Локация:

  • 4 минуты пешком до метро Пушкинская
  • 5 минут до метро Спортивная
  • 2 минуты до остановки общественного транспорта
  • Высокий пешеходный и автомобильный трафик
  • Плотная жилая застройка → постоянный поток клиентов

Основные характеристики:

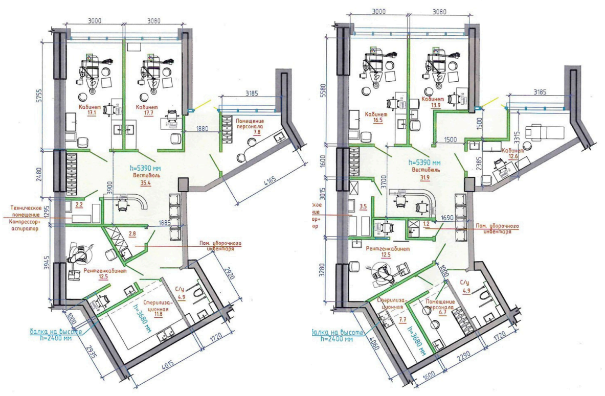
  • Общая площадь: 115,9 м2
  • Этаж: 1-й из 25
  • Отдельный вход с улицы
  • Свободная планировка
  • Панорамные окна (в пол)
  • Высота потолков: 5,4 м

Коммуникации и технические параметры:

  • Электричество: 15 кВт (с возможностью увеличения)
  • Центральное отопление и водоснабжение
  • Приточно-вытяжная вентиляция
  • Пожарная сигнализация

Преимущества для медицинского бизнеса. Уже разработан архитектурный план под:

    • стоматологию
    • медицинскую лабораторию
    • косметологию
  • Высокие потолки позволяют:
    • установить рентген-оборудование (исключительно только дентальный рентгеновский аппарат с цифровым приемником изображения с ограниченной рабочей нагрузкой, т.к. помещение находится в жилом здании)
    • организовать профессиональную вытяжку
  • Соответствие требованиям для лицензируемой деятельности

Парковка:

  • Наземная гостевая парковка
  • Дополнительно — платный паркинг рядом с Ледовым дворцом

Состояние:

  • Новостройка (2025 год)
  • Помещение без отделки — возможность реализовать проект под свой бренд и стандарты

Условия аренды:

  • Стоимость: 3500 € / месяц
  • Арендные каникулы: 2 месяца
  • Коммунальные и эксплуатационные расходы оплачиваются отдельно
  • Только долгосрочная аренда
Актуальная цена будет согласована по факту переговоров при реализации идей конкретного арендатора. Рассматриваем срок аренда от 5 лет и выше.

Result Estate — ваш надёжный партнёр на рынке недвижимости.

20 лет опыта наших агентов по недвижимости — это ваш ключ к идеальной сделке: глубокое знание рынка, эксклюзивные предложения, юридическая безопасность и индивидуальный подход. Мы экономим ваше время, деньги и нервы, помогая купить, продать недвижимость быстро, выгодно и с уверенностью в результате!

Все актуальные предложения в одном месте — смотрите на нашем сайте.

Опишите свои пожелания — и мы оперативно подберем для вас лучшие варианты!

ООО «Результативная недвижимость», лицензия выдана Минюстом 26.09.2023 № 02240470, УНП 193703497

Связываясь с нами по данному объекту, Вы даете свое согласие на сбор и обработку персональных данных автоматически.