Снять торговое помещение (155.10 м²), г. Минск, просп. Победителей, 129

Снять торговое помещение (155.10 м²), г. Минск, просп. Победителей, 129

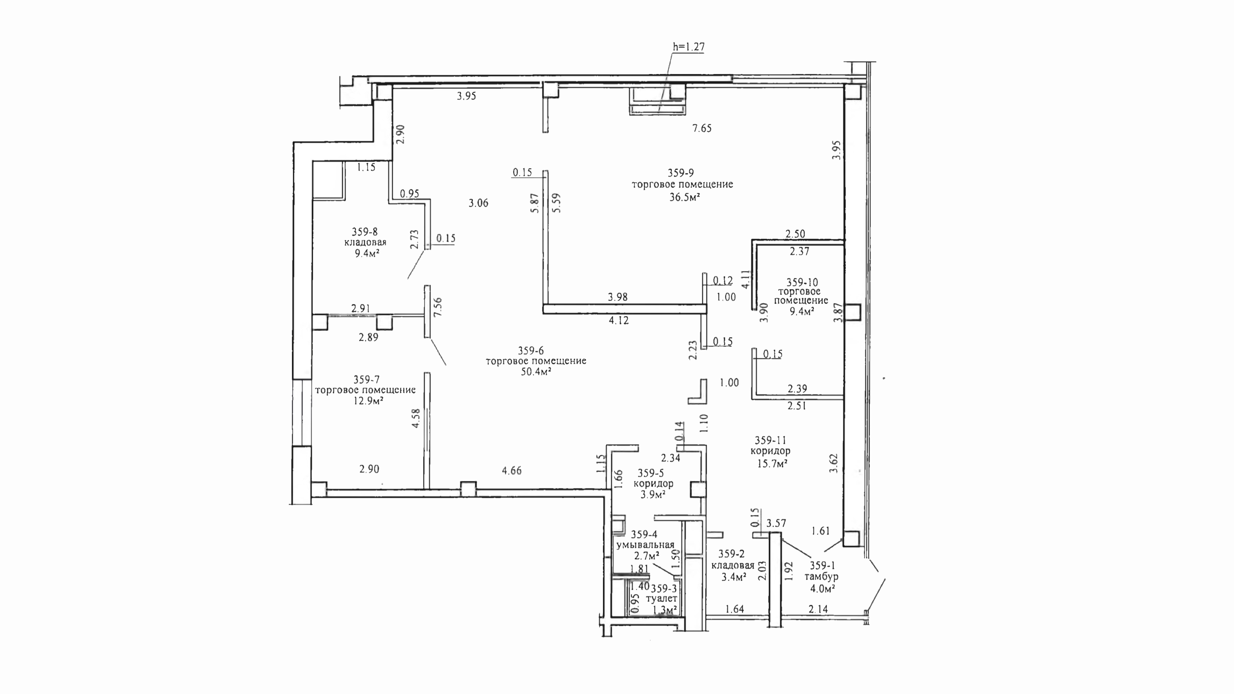
Торговое помещение
155.1
Площадь
Снять торговое помещение (155.10 м²), г. Минск, просп. Победителей, 129
25.04.2026, 12:02
Позвонить +375 (29) 188-55-99 Позвоните мне
Минск и Минская область

Описание

Сдается в аренду просторное, светлое помещение с отделкой площадью 155,1 м2.

Помещение располагается на втором этаже (вход со стилобата) многоэтажного жилого дома.

В него ведет отдельный вход.

Установлены все коммуникации. Выполнена вентиляция с естественным побуждением воздуха, пожарная сигнализация.

В помещении выполнена отделка, обустроен санузел, организовано зонирование. Оно доступно к субаренде.

Также помещение характеризуется отличным местоположением в современном развитом районе.

Транспортная доступность: помещение расположено прямо на проспекте Победителей, в 2 минутах ходьбы от него расположены остановки наземного транспорта. В 5 3 минутах езды от помещения находится выезд на МКАД, на таком же расстоянии от помещения расположен ТЦ "Арена-Сити".

Возле дома расположена свободная плоскостная парковка.

В этом доме, как и в соседних домах расположены многочисленные кофейни, магазины.

Result Estate — ваш надёжный партнёр на рынке недвижимости.

20 лет опыта наших агентов по недвижимости — это ваш ключ к идеальной сделке: глубокое знание рынка, эксклюзивные предложения, юридическая безопасность и индивидуальный подход. Мы экономим ваше время, деньги и нервы, помогая купить, продать недвижимость быстро, выгодно и с уверенностью в результате!

Все актуальные предложения в одном месте — смотрите на нашем сайте.

Опишите свои пожелания — и мы оперативно подберем для вас лучшие варианты!

ООО «Результативная недвижимость», лицензия выдана Минюстом 26.09.2023 № 02240470, УНП 193703497

Связываясь с нами по данному объекту, Вы даете свое согласие на сбор и обработку персональных данных автоматически.