Купить офис, г. Минск, ул. Зыбицкая, 2

Купить офис, г. Минск, ул. Зыбицкая, 2

Офис
126.2
Площадь, м2
Купить офис, г. Минск, ул. Зыбицкая, 2
750 692 руб. 265 000 $ 2 100 $ / м²
14.10.2025, 12:10
Позвонить +375 (29) 188-55-99 Позвоните мне
г. Минск, ул. Зыбицкая, 2,
Немига

Описание

Продажа Офисного помещения с долгосрочным арендатором в Минске по адресу: ул. Зыбицкая, д. 2

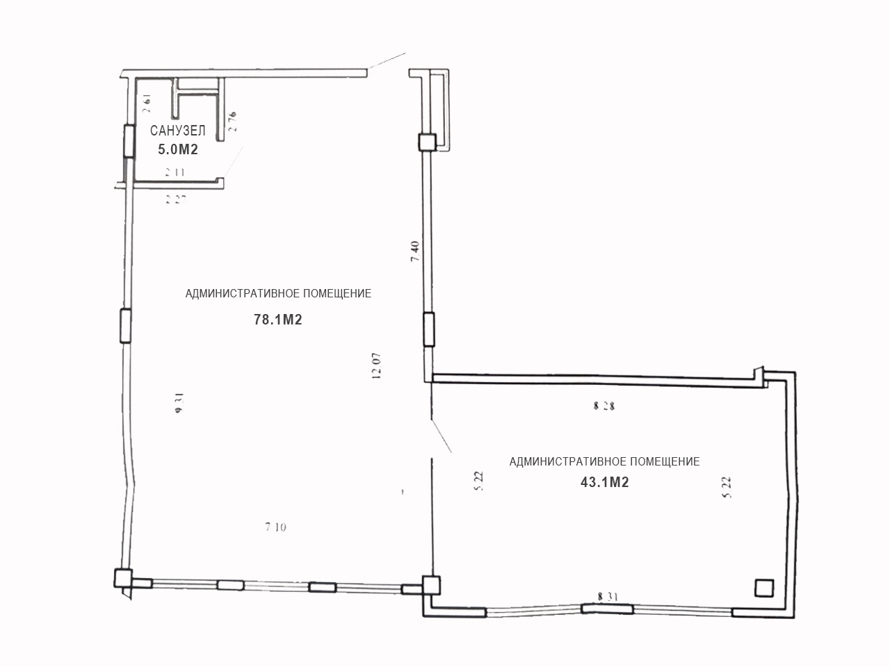
Тип объекта: Офисное помещение на третьем этаже общей площадью: 126,2 м2

Продается офисное помещение с качественным, дорогим ремонтом, расположенное на третьем этаже по адресу: ул. Зыбицкая, дом 2.

Отделка офиса:

  • напольное покрытие: паркет (дуб);
  • отделка стен: итальянская штукатурка, деревянные панели (дуб);
  • потолок в стиле: комбинированный (дерево, натяжной)

Инженерные системы и коммуникации:

  • приточно-вытяжная вентиляция;
  • разведены электрические и слаботочные сети, разводка для кондиционеров (2 шт).
  • центральное водоснабжение и отопление;
  • пожарная сигнализация;
  • установлены приборы учета.
  • собственный сан. узел (медные итальянские изделия)

Инфраструктура и удобства:

  • Помещение находится в месте, с высоким пешеходным и автомобильным трафиком.
  • В 3-х минутах ходьбы расположены остановки общественного транспорта и станция метро «Немига».
  • Удобные подъездные пути и парковочные места в непосредственной близости от объекта.
  • Рядом расположены пункты общественного питания, торговые центры, отделения банков и прочие услуги.
  • Объект находиться в самом центре Минска, на самой «тусовочной» улице столицы.

Инвестиционная привлекательность:

  • Объект с качественным, полноценным ремонтом, готов под сдачу в аренду, что гарантирует минимальные вложения в обустройство помещения и стабильный доход в дальнейшем, для будущего владельца.
  • Помещение сдано в аренду, надежному арендатору, очень хорошая инвестиционная окупаемость 
  • Идеальный вариант для инвесторов, желающих получать доход без вложений в ремонтные работы и поиск арендатора 
  • Удобная локация с активным трафиком.

Покупатель не оплачивает услуги риэлтерской организации.

Result Estate — ваш надёжный партнёр на рынке недвижимости.

20 лет опыта наших агентов по недвижимости — это ваш ключ к идеальной сделке: глубокое знание рынка, эксклюзивные предложения, юридическая безопасность и индивидуальный подход. Мы экономим ваше время, деньги и нервы, помогая купить, продать недвижимость быстро, выгодно и с уверенностью в результате!

Все актуальные предложения в одном месте — смотрите на нашем сайте.

ООО «Результативная недвижимость», лицензия выдана Минюстом 26.09.2023 № 02240470, УНП 193703497

Связываясь с нами по данному объекту, Вы даете свое согласие на сбор и обработку персональных данных автоматически.