Купить офис, г. Минск, ул. Тепличная, 9

Купить офис, г. Минск, ул. Тепличная, 9

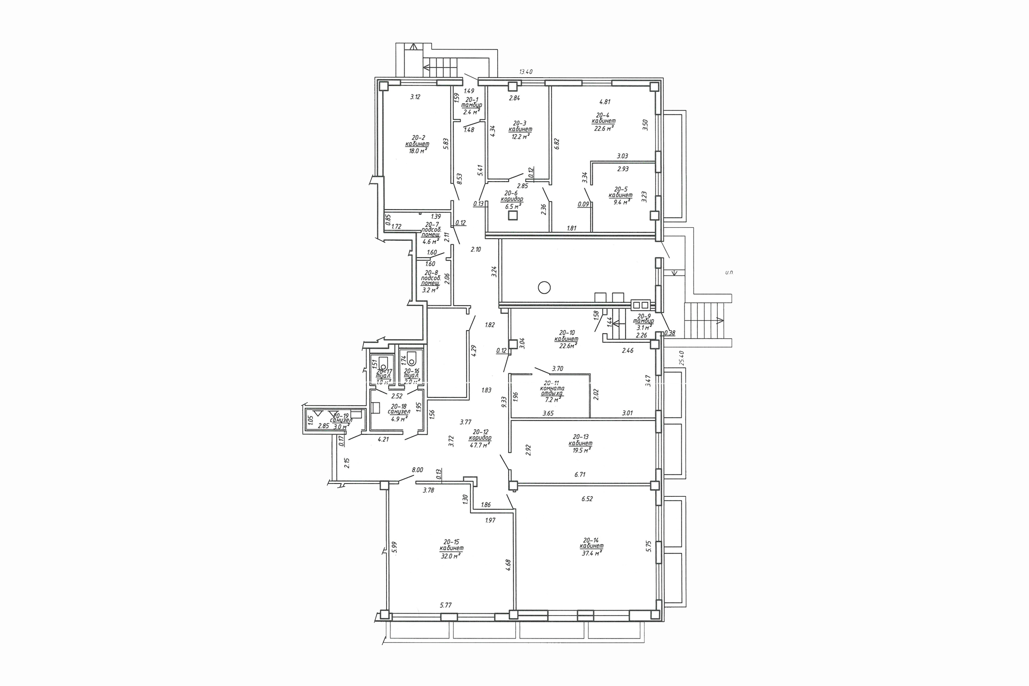
Офис
260.1
Площадь, м2
Купить офис, г. Минск, ул. Тепличная, 9
476 645 руб. 169 065 $ 650 $ / м²
24.02.2026, 18:00
Позвонить +375 (29) 188-55-99 Позвоните мне
г. Минск, ул. Тепличная, 9

Описание

Продажа офиса 260,1 кв.м. на цокольном этаже в жилом доме на Тепличной 9.

Помещение сочетает в себе комбинированный формат открытого пространства и отдельных кабинетов с возможностью установки дополнительных перегородок. Помещение готово к переезду. Оборудованная мини-кухня.

Отделка офиса:
- напольное покрытие: ламинат/плитка;
- отделка стен: окрашены;
- потолок Arm Strong.

Инженерные системы и коммуникации:
- вентиляция  c естественным побуждением движения воздуха;
- кондиционирование;
- коммуникационный шкаф;
- разведены электрические и слаботочные сети;
- имеется водоснабжение и отопление;
- пожарная сигнализация.

Парковка:
Плоскостная парковка у здания;

Транспортное сообщение:
Более десяти маршрутов городского транспорта курсирует в шаговой доступности от здания.

Инфраструктура:
Развитая инфраструктура общественного питания, продуктовых магазинов, сферы услуг, пункты оказания банковских услуг.

Поможем продать Вашу недвижимость для покупки этой!

Result Estate — ваш надёжный партнёр на рынке недвижимости.

20 лет опыта наших агентов по недвижимости — это ваш ключ к идеальной сделке: глубокое знание рынка, эксклюзивные предложения, юридическая безопасность и индивидуальный подход. Мы экономим ваше время, деньги и нервы, помогая купить, продать недвижимость быстро, выгодно и с уверенностью в результате!

Все актуальные предложения в одном месте — смотрите на нашем сайте.

Опишите свои пожелания — и мы оперативно подберем для вас лучшие варианты!

ООО «Результативная недвижимость», лицензия выдана Минюстом 26.09.2023 № 02240470, УНП 193703497

Связываясь с нами по данному объекту, Вы даете свое согласие на сбор и обработку персональных данных автоматически.